D2 HOUSE
Project : D2 House
Project team: Andrea Ambrovičová, Juraj Mikulaj
Status: Built
Location: Bratislava, SVK
Size: 242 m2
Photo: Tomáš Manina
2012 - 2014
A house in a steep slope with a beautiful view over a valley
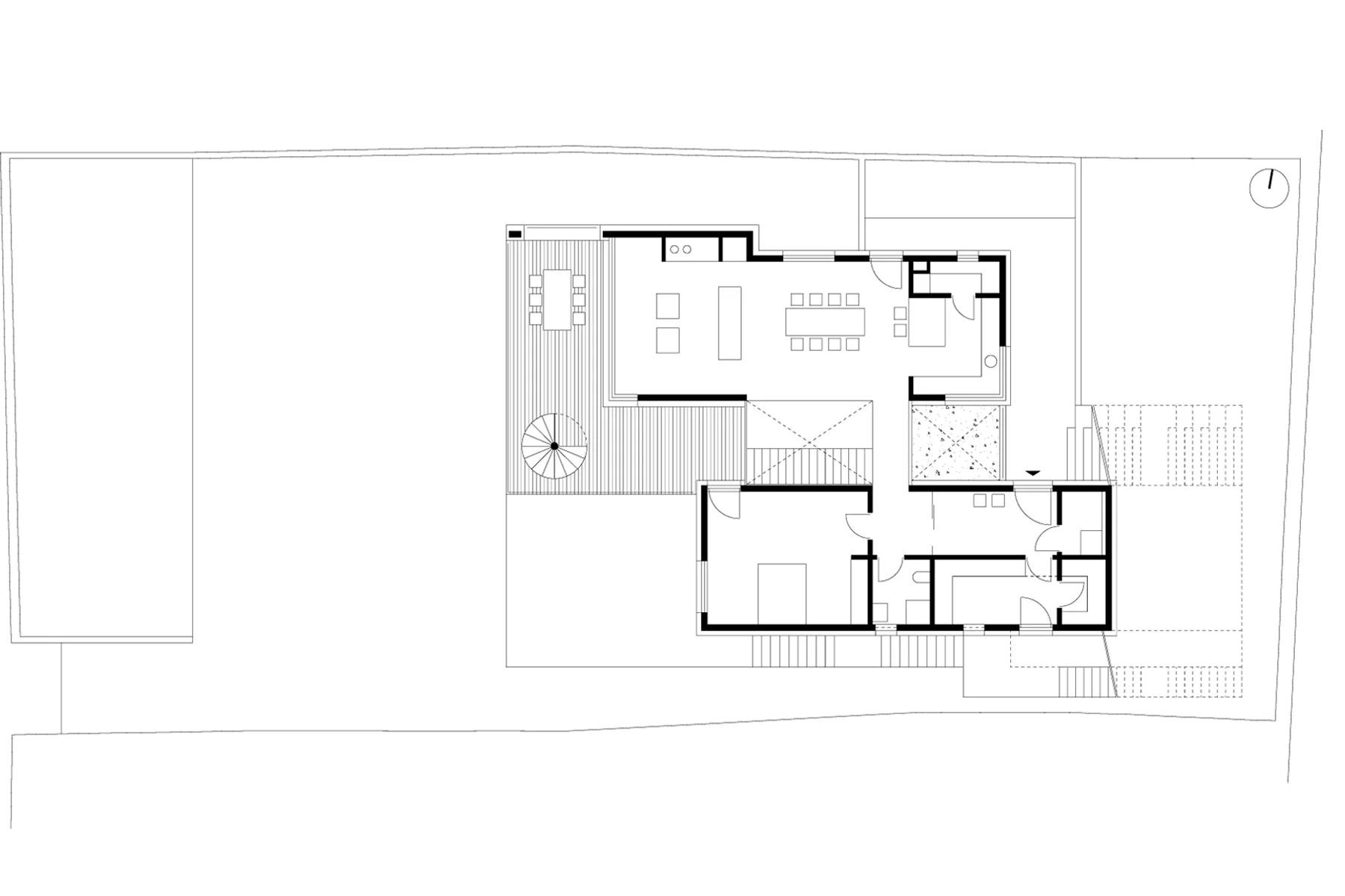
The depth difference of the slope is nearly 12 meters, the functions are spread in four height levels. The ground as well as the house is accessible from both streets
The idea of the proposal is a house made of two houses which are connected by a core space – the gallery, the staircase, the atrium, the loggia. All of these functions are hidden in one space, in three height levels, on one axis. Its volume is not large, even though offers this space unexpected views from many points of the house. A minimal atrium performs a maximal effect – it brings daylight into spaces cut into the slope, as well as it creates a little green garden visible from many spaces of the house.The idea of the proposal is a house made of two houses which are connected by a core space – the gallery, the staircase, the atrium, the loggia. All of these functions are hidden in one space, in three height levels, on one axis. Its volume is not large, even though offers this space unexpected views from many points of the house. A minimal atrium performs a maximal effect – it brings daylight into spaces cut into the slope, as well as it creates a little green garden visible from many spaces of the house.
